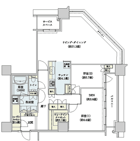
【100−Gタイプ メニュープラン】
専有面積101.67m2
あなたを想うことから。 ページの先頭へ
[an error occurred while processing this directive]