Further Improvement of Nihonbashi Life Science Base
Establishes fourth shared office space to expand the capacity of communication lounges, meeting rooms and conference rooms
May 31, 2018
General incorporated association Life Science Innovation Network Japan, Inc.
Mitsui Fudosan Co., Ltd.
Mitsui Fudosan Co., Ltd. (Head office: Chuo-ku, Tokyo; President and Chief Executive Officer: Masanobu Komoda; hereinafter “Mitsui Fudosan”) announced today that it will expand the capacity of Nihonbashi Life Science Hub as part of its Nihonbashi Life Science Innovation Promotion Project jointly implemented with the general incorporated association Life Science Innovation Network Japan, Inc. (Chairman of the Board: Hideyuki Okano; hereinafter “LINK-J”).
The three existing Nihonbashi Life Science base are currently occupied by 57 corporations and organizations, and have been used as places for innovation by 227 LINK-J members (number of corporate and individual members as of May 30, 2018) to facilitate human and technology exchanges. There were 380* events and programs organized at Nihonbashi Life Science base in 2017.
* Only including open events and programs organized for over 30 people.
The shared office space established within Nihonbashi Life Science Building (2-3-11, Nihonbashi-honcho, Chuo-ku; hereinafter “LSB”) in April 2017 was favorably received. After only one year, it is almost fully occupied. The communication lounge is used often and demand is increasing for more meeting rooms and conference rooms to accommodate large-scale interactions and collaboration events, as well as the number of requests for more functions that LINK-J members can use.
A new shared office space will be established in the fourth location (Tosho Building 8th floor, 3-8-3, Nihonbashi-honcho, Chuo-ku) on June 1, 2018, to meet demand and to enable the first phase of Nihonbashi Life Science Hub's capacity expansion.

New hub (Tosho Building) |
 |

Floor used by Life Science (shared office space on 8th floor)
|
The functions of the three existing hubs, including LSB, will be expanded as services for LINK-J members are successively improved.
Details of key updates at Nihonbashi Life Science base and other buildings

The series of updates will be carried out to establish an ecosystem* that Nihonbashi Life Science Innovation Promotion Project strives to achieve with a view to continue to provide an environment where industry-academia-government organizations can interact across sectors for co-creation.
*A system that allows life science-related corporations and organizations to congregate in Nihonbashi, and use Nihonbashi as a hub for creating new industries through interaction, development and collaboration.
Overview of Nihonbashi Life Science Hub
1) Overview of the shared office space on the 8th floor of Tosho Building
Address: 3-8-3, Nihonbashi-honcho, Chuo-ku, Tokyo, 103-0023
Launch: June 1, 2018
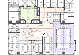
Facility overview: The shared office space is comprised of 21 personal booths and 8 open desks. The lobby area in the center of the floor can be used by shared office occupants to carry out work and meetings.

Meeting rooms |
 |

Floor plan
Click illustration to enlarge
|
Monthly rental fee (excluding tax)
| Open desks |
30,000 yen |
| Personal booth for one person |
70,000 - 80,000 yen |
| Personal booth for two persons |
110,000 yen |
| For four persons |
220,000 - 230,000 yen |
| For five persons |
270,000 - 290,000 yen |
| Other features |
- Accessible 24 hours
- Copy machines available
- Fully equipped with Wi-Fi
- Electricity, air-conditioning and water bills included
- No deposit required
- Can be used for commercial registration
|
*Additional LINK-J member enrollment and annual fees required.
2) Overview of the LINK-J members-only communication lounge on the first floor of Nihonbashi Life Science Building
Address: 2-3-11, Nihonbashi-honcho, Chuo-ku, Tokyo, 103-0023
Launch: June 1, 2018
Facility overview: The LINK-J members-only communication lounge will be extended to the first floor of LSB. The new lounge with its calm atmosphere is equipped with 24 seats, including sofas, and is freely accessible between 8:00 a.m. and 10:00 p.m., similar to the 10th-floor communication lounge established in 2017. Beverages and nuts are provided. Private meeting spaces are also available that can be used for interactions between members and business meetings.

Floor plan
Click illustration to enlarge
|
 |

Communication lounge |
3) Overview of the conference room extension within Nihonbashi Life Science Hub
Address: Muromachi Chibagin Mitsui Building, 8th floor, 1-5-5, Nihonbashi Muromachi, Chuo-ku, Tokyo, 103-0022
Launch: July 2018 (planned)
Facility overview: The conference room that can accommodate up to 210 people, which has been used for numerous interaction and collaboration events, including networking nights sponsored by LINK-J and symposiums sponsored by business partners, will be updated to accommodate up to 300 people and can be used at large-scale events where a variety of people can gather.
4) Overview of the updates carried out on the entrance hall and meeting rooms on the 9th floor of Nihonbashi Life Science Building 2
Address: 3-11-5, Nihonbashi-honcho, Chuo-ku, Tokyo, 103-0023
Launch: August 1, 2018 (planned)
Facility overview: Seven meetings rooms suitable for 6 to 24 people will be established on the 9th floor. LINK-J members can access them not only on weekdays but also on Saturdays and Sundays. Nihonbashi Life Science Building 2 will be updated to accommodate this additional space to carry out work and meetings in a more private setting. Communal spaces, including the entrance hall, will also be updated.

Floor plan of 9th floor meeting rooms
Click illustration to enlarge
|
 |

Conceptual drawing of entrance |
Key tenant corporations and organizations of Nihonbashi Life Science Hub (as of May 30, 2018; listed in random order)
[Nihonbashi Life Science Building]
| Floor |
Tenant corporations and organizations |
| 10th floor |
INDEE Japan Ltd.,
General incorporated association Life Science Innovation Network Japan, Inc. |
| 9th floor |
The University of Tokyo, Keio University, Osaka University, Kyoto University,
Tohoku University, Kyushu University
University of California, San Diego |
| 7th and 8th floor |
The Japan Pharmaceutical Manufacturers Association |
| 6th floor |
Tokyo Medical-Industrial Cooperation Innovation Center,
General incorporated association Forum for Innovative Regenerative Medicine,
General incorporated association DIA Japan,
Japanese Organization for Medical Device Development, Inc.,
General incorporated association Pharmaceutical Development Support Center,
Tohoku University |
| 5th floor |
MinaCare Co., Ltd., General incorporated association Japan CRO Association,
General incorporated foundation Alliance Forum Foundation
General incorporated association Japan Biological Informatics Consortium,
Shared office space* |
| 4th floor |
Specified NPO The Systems Biology Institute, Quantum Biosystems Inc.,
Tsujimaru International Patent Office,
General incorporated association The Japanese Society for Regenerative Medicine,
General incorporated association Health Care Stability and Regional Economy Vitalization Forum, Mitsubishi Research Institute, Inc.,
Gastheos Pharma Inc., Murata Associates, Inc., Tohoku University |
*The shared office space is occupied by 22 corporations and organizations (including some individuals).
[Nihonbashi Life Science Building2] (31VENTURES Floor)
| Floor |
Tenant corporations and organizations |
| 7th floor |
Ubie, Inc., KinoPharma, Inc., MeSCue JANUSYS Corporation |
| 6th floor |
INDEE Medical, Inc., Delta-Fly Pharma, Inc., MedVision Corporation
Biomedical Solutions Inc.,
General incorporated association Nihon Iko Monozukuri Commons |
| 5th floor |
Sustainable Medicine, Inc., Biomedical Solutions Inc., Axil Capital Partners LLP,
HPC SYSTEMS Inc., Asajes Ventures K.K., Cuorips Inc. |
*Biomedical Solutions Inc. occupies the 5th and 6th floors.
[Nihonbashi Life Science Hub]
| Floor |
Tenant corporations and organizations |
| 8th floor |
National research and development agency Japan Agency for Medical Research and Development (AMED), Department of Innovative Drug Discovery and Development (East Japan Office) |
About general incorporated association Life Science Innovation Network Japan (LINK-J)
LINK-J is a general incorporated association established by Mitsui Fudosan and interested members in academia as its main driving force. LINK-J is based in the Nihonbashi district where a cluster of medical and pharmaceutical-related companies is situated, and its purpose is to promote open innovation in the life science field through industry-academia-government collaboration to support the creation of new industries. The life sciences constitute an interdisciplinary nexus linking all areas of scientific endeavor. They encompass medicine, the natural sciences, engineering; and such new technologies as ICT and AI. LINK-J has been established to promote national and international cross-disciplinary interaction of human resources and technologies.