First New Facility Construction for the Mitsui Lab & Office Business
MITSUI LINK-Lab SHINKIBA 1 Opens
Second Building Planned for Shinkiba Area, Completion Scheduled for
MITSUI LINK-Lab KASHIWANOHA (tentative name)
Four-Building Complex by 2023
July 8, 2021
Mitsui Fudosan Co., Ltd.
Life Science Innovation Network Japan (LINK-J) Inc.
Tokyo, Japan, July 8, 2021 – Mitsui Fudosan Co., Ltd., a leading global real estate company headquartered in Tokyo, has opened MITSUI LINK-Lab SHINKIBA 1, the second urban proximity-type rental lab and office facility in the Mitsui Lab & Office business and its first newly built rental lab facility. Furthermore, a second building is planned for the Shinkiba area, and we are moving forward to the new asset class Mitsui Lab & Office business, following office building, residence, commercial facilities, hotel/resort, and logistic facilities
Summary of this release
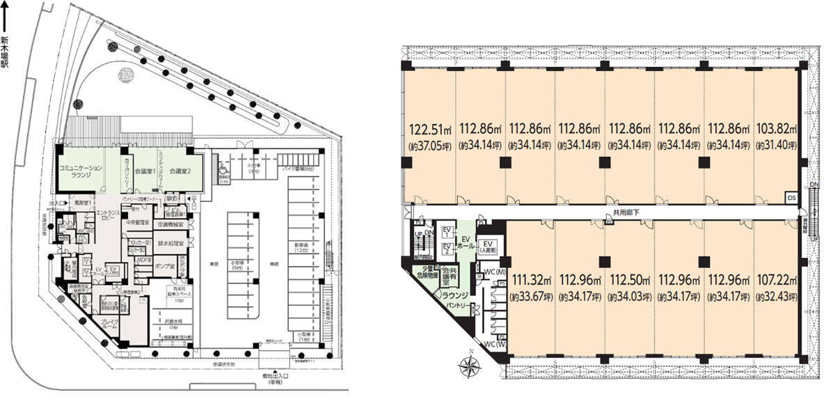
- Conveniently accessible to central Tokyo with wet lab specifications compatible with BSL2, enabling full-scale research. Various common areas such as a lounge are also set up
- Aggregation of various innovation players in the life sciences domain with participants including startups and CROs though to those in other industries
- Aiming for completion in spring 2023, a second building in the Shinkiba area is also planned. Mitsui Lab & Office business will become a four-building system, including MITSUI LINK-Lab KASHIWANOHA (tentative name), with construction scheduled for completion in November 2021

External view of MITSUI LINK-Lab SHINKIBA 1

Communication lounge
MITSUI LINK-Lab SHINKIBA 1
| Address | 2-3-8 Shinkiba, Koto-ku, Tokyo |
|---|---|
| Completion | March 18, 2021 |
| Site area | Approx. 35,500 ft2(3,300.06 m2) |
| Total floor area | Approx. 120,230 ft2(11,169.77 m2) |
| Total rental area | Approx. 84,682 ft2(7,867.25 m2) |
| Basic design | Nikken Sekkei Ltd. |
| Design/Supervision | Kajima Corporation |
| Construction | Kajima Corporation |
* Mitsui Fudosan provides leased land from the landowner to tenants after developing the building

External view of MITSUI LINK-Lab
Access
Tokyo Metro Yurakucho Line/Tokyo Waterfront Area Rapid Transit Rinkai Line
JR Keiyo Line Shinkiba Station 11-minute walk



























